Arise United Methodist Church
Pinckney, Michigan
Project Overview
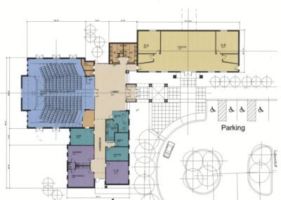
Arise Church has planned for a steady growth in their congregation with anticipation of a rising demand for classroom space to support new youth programs. The Phase 2 portion of this project would expand the Sanctuary area to accommodate seating for 250+.
Unique Factors
- The first phase of this project re-purposed an existing barn by renovating it into a sanctuary and classroom with a modest entry and public restroom.
- The planned second phase will add a new main sanctuary, classrooms and administrative support areas. The original phase one portion will be dedicated to the youth programs
Key Outcomes
- Working with the church resources we were able to fill their immediate needs with a modest Sanctuary.
- Planning for future growth is an important part of the overall vision.
